Apartamento T6 + 1 com terraço, Estoril, Cascais




















































Descrição
Situada no coração do Estoril, em um condomínio fechado com segurança, esta encantador apartamento de 4 pisos com vivencia de moradia, oferece uma combinação perfeita de charme, funcionalidade e conforto. Com uma área construção de 692 m², destaca-se pela organização eficiente dos espaços e pelo excelente estado de conservação.
Principais Características:
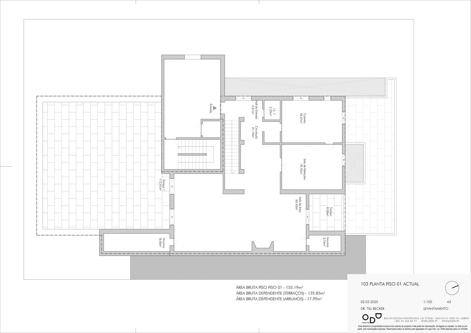
Piso de entrada: Uma ampla sala de estar com duplo pé-direito e lareira, onde a disposição harmoniosa proporciona uma conexão fluida entre os ambientes e acesso a um espaçoso terraço, ideal para momentos de lazer. A cozinha, totalmente equipada, integra-se à sala de jantar, criando um espaço acolhedor para convívio em família.
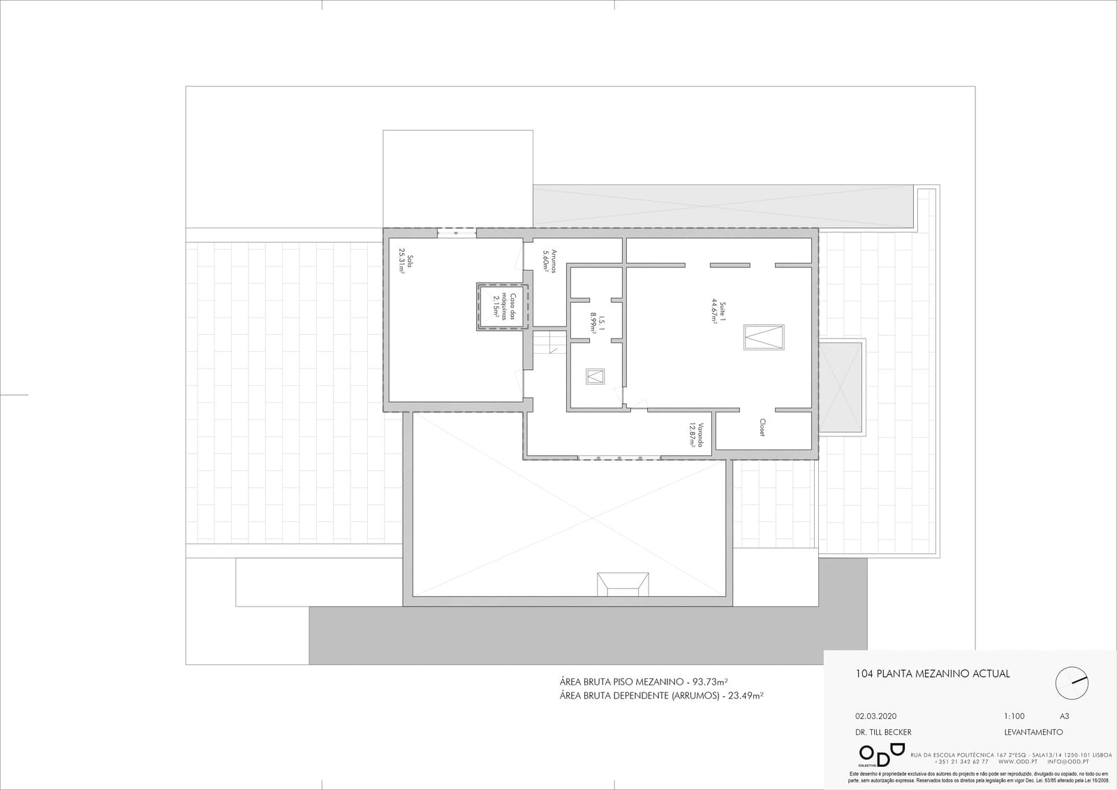
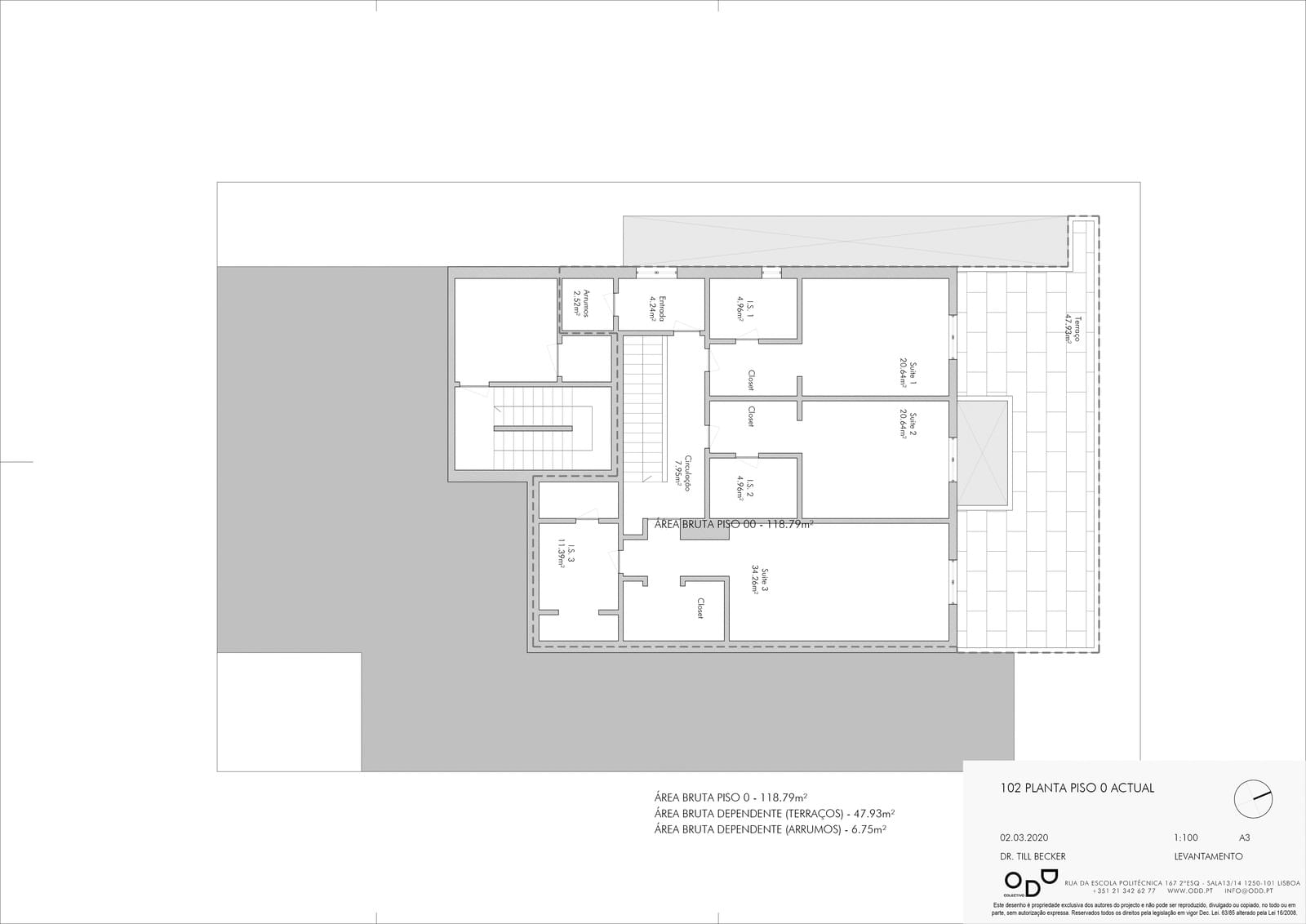
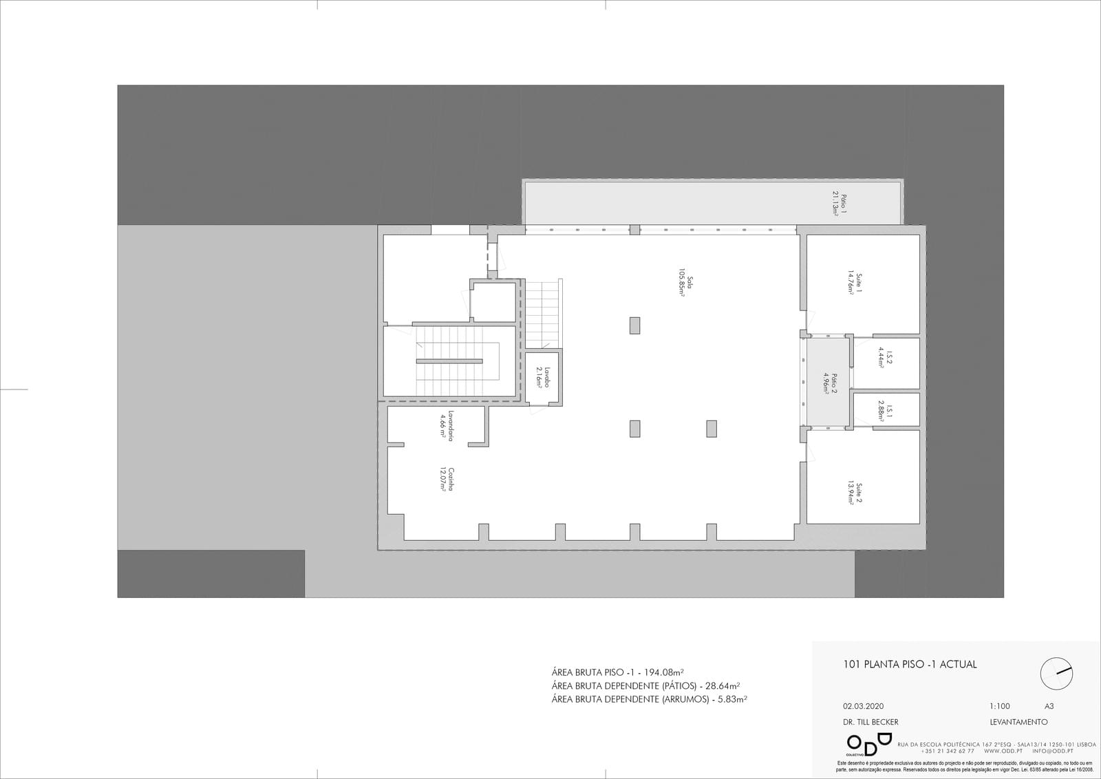
Quartos: São 6 quartos, distribuídos pelos diferentes pisos, garantindo total privacidade. A moradia dispõe ainda de 6 casas de banho, assegurando funcionalidade e conforto para toda a família.
Espaços adicionais: Um mezanino transformado em escritório, perfeito para trabalhar ou estudar, e uma sala multiusos com cozinha aberta e entrada independente, oferecendo versatilidade e conveniência.
Condomínio: Áreas verdes bem cuidadas e uma piscina exterior completam o ambiente exclusivo e tranquilo.
Esta moradia é ideal para quem valoriza charme, conforto e uma localização estratégica na Riviera Portuguesa.
Sobre o Estoril:
O Estoril é mundialmente reconhecido pelos seus campos de golfe internacionais, o emblemático Casino do Estoril e a sua atmosfera sofisticada e descontraída. A região oferece praias encantadoras, escolas de excelência – incluindo opções internacionais – e uma rica oferta cultural e gastronómica, tornando-se uma das localizações mais desejadas na costa portuguesa.
Sobre a Porta da Frente Christie’s:
A Porta da Frente Christie's é uma empresa de mediação imobiliária que opera no mercado há mais de duas décadas, focando-se nas melhores propriedades e empreendimentos, tanto para venda como para arrendamento. A empresa foi selecionada pela prestigiada marca Christie's International Real Estate para representar Portugal nas áreas de Lisboa, Cascais, Oeiras e Alentejo. A principal missão da Porta da Frente Christie's é fornecer um serviço excelente a todos os nossos clientes.
Áreas
562 m²
Área Bruta Privativa
Características
Descubra o seu novo bairro
