Moradia Isolada T3 com piscina, Arneiro, Cascais
































Descrição
Moradia T3, localizada no Arneiro, Carcavelos, em Cascais. Com construção recente (2021), esta propriedade combina conforto, otimização de espaços, modernidade e uma localização privilegiada, perfeita para quem valoriza qualidade de vida e acessibilidade, com proximidade a transportes.
Inserida num lote de terreno de 330m², a moradia oferece total privacidade e contempla uma área bruta de construção de 287,05m², com excelentes acabamentos, piscina, jardim e vistas desafogadas.
Distribuição da Moradia:
Piso Térreo:
• Hall de entrada 4,90m².
• Sala de estar e jantar em open space com ligação direta à cozinha equipada com eletrodomésticos Siemens e 57,20m².
• Casa de banho social 2,25m².
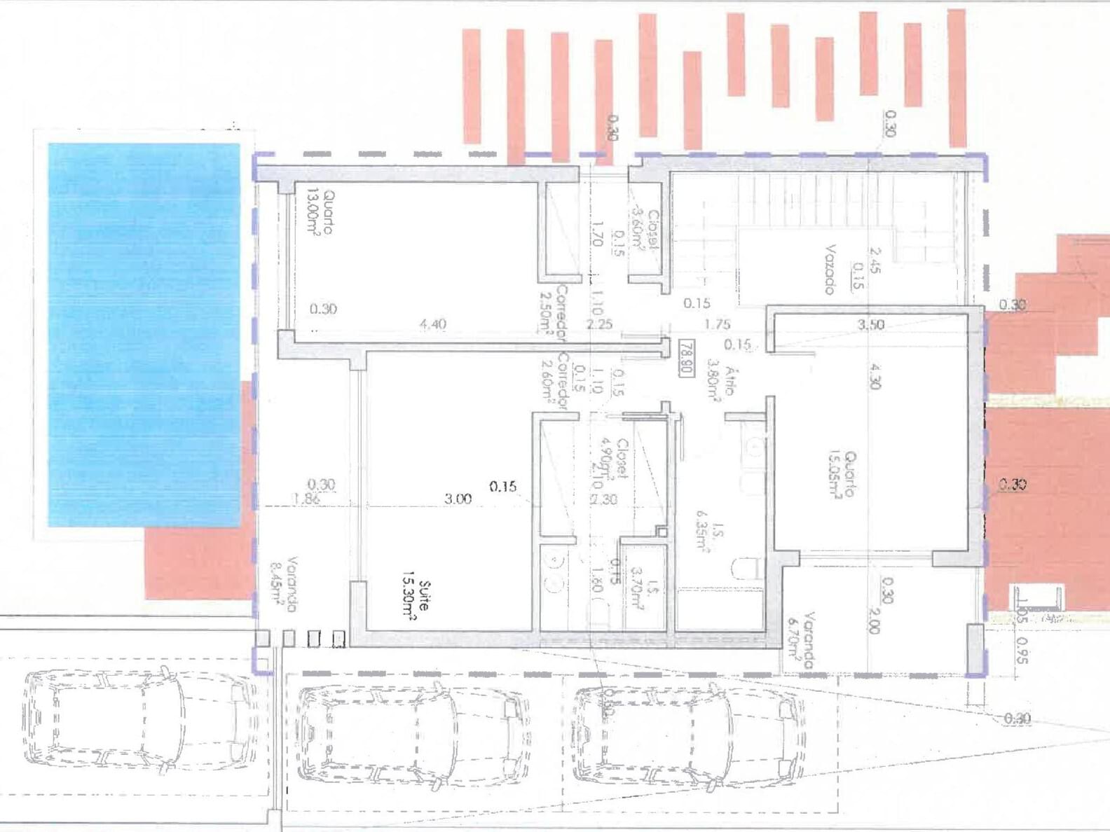
Primeiro Andar:
• 1 suíte com varanda, walk-in closet e casa de banho privativa 24 m².
• 1 quarto 13 m², com terraço.
• 1 quarto 15 m², com closet.
• 1 Casa de banho de apoio aos 2 quartos 6,35m².
Cave:
• Sala multiusos de 50 m², dividido em zona de convívio, escritório e casa de banho.
• Acesso direto a garagem, ao jardim e piscina.
• Lavandaria.
Exterior:
• Piscina com orientação solar a sul.
• Jardim e horta.
• Garagem coberta para um carro.
• Estacionamento exterior para duas viaturas.
A moradia conta com uma série de equipamentos e infraestruturas que garantem conforto e segurança, incluindo aspiração central, pré-instalação de painéis solares e ar condicionado, estores elétricos e uma porta de alta segurança.
Localizada numa zona tranquila e acessível, esta propriedade oferece proximidade a supermercados, restaurantes, farmácias, ginásios e zonas verdes de lazer. Está também perto de escolas de referência, como a St. Dominic's International School e a St. Julian's School, assim como de centros comerciais, como o Tagus Park e o Oeiras Park, e institutos de investigação, como o ITQB e o IGC. Nas imediações, encontra ainda centros de saúde, hospitais privados e estações de comboio de Oeiras e Carcavelos, além de beneficiar de transportes públicos gratuitos no Concelho de Cascais.
A Porta da Frente Christie’s é uma empresa de mediação imobiliária que trabalha no mercado há mais de duas décadas, focando-se nos melhores imóveis e empreendimentos, quer para venda quer para arrendamento. A empresa foi selecionada pela prestigiada marca Christie’s International Real Estate para representar Portugal, nas zonas de Lisboa, Cascais, Oeiras e Alentejo. A principal missão da Porta da Frente Christie’s é privilegiar um serviço de excelência a todos os nossos clientes.
Áreas
183 m²
Área Bruta Privativa
287 m²
Área Bruta de Construção
330 m²
Área do Lote
Divisões
Características
Cascais
Cascais representa o melhor do lifestyle à beira-mar, com um cenário de tirar o fôlego e uma atmosfera sofisticada. Entre praias paradisíacas, campos de golfe e restaurantes estrelados, a vila atrai quem busca conforto e exclusividade. A marina, os bairros históricos e as luxuosas propriedades fazem de Cascais um destino de eleição para famílias, investidores e amantes da natureza que não abrem mão da proximidade com Lisboa.
Descubra o seu novo bairro
