Prédio Habitacional, Cascais


















Descrição
Prédio com localização privilegiada no centro histórico de Cascais, para exploração turística ou fins residenciais.
Localizado em Área de Reabilitação Urbana, pode candidatar-se à obtenção de incentivos fiscais.
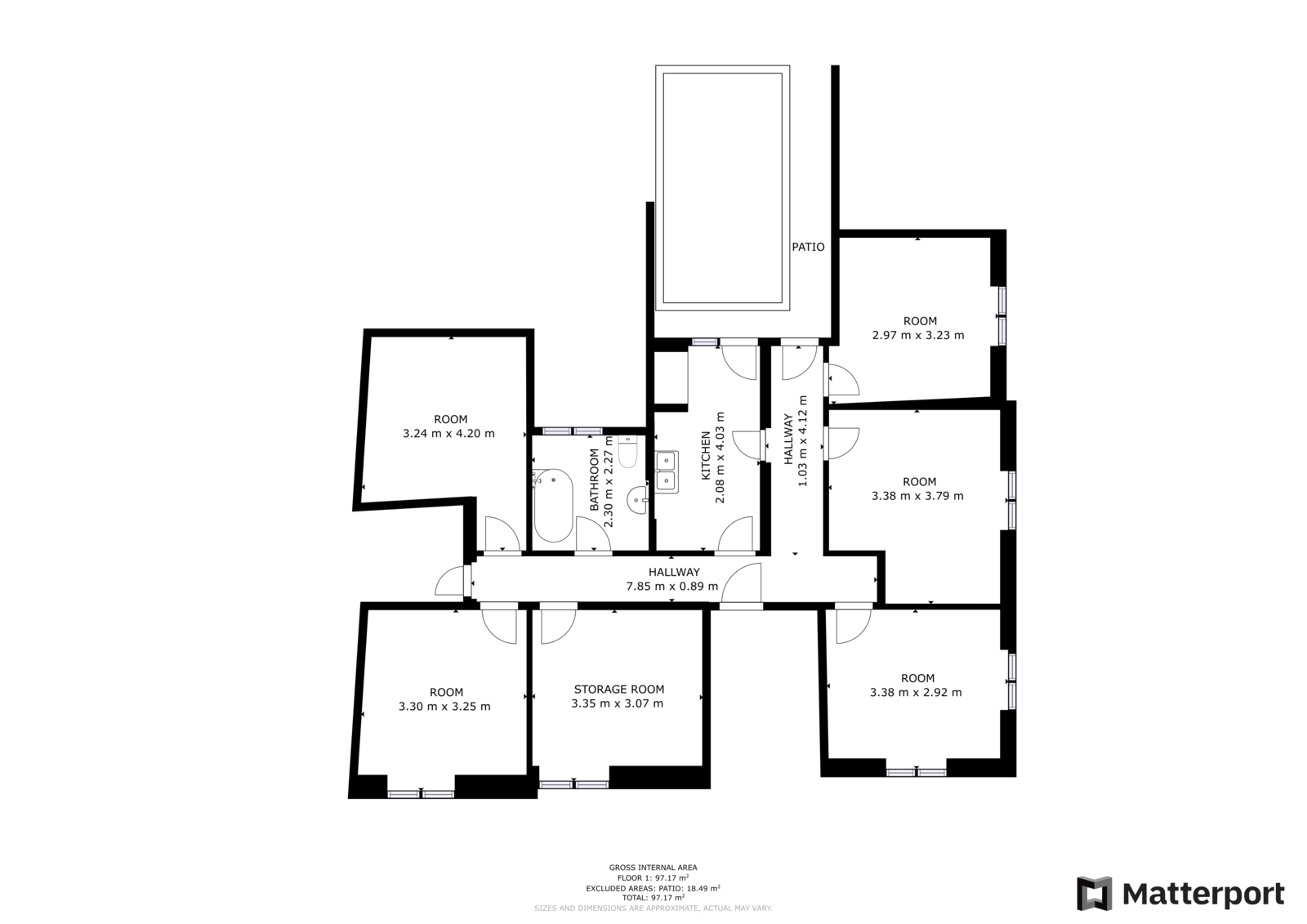
Este prédio com 433 m2 de área bruta privativa distribui-se em 3 pisos da seguinte forma:
No rés-do-chão, encontra dois espaços de serviços separados, incluindo 1 casa de banho, 4 salas e um armazém.
No 1ºAndar tem 2 apartamentos distintos. O primeiro é constituído por 4 quartos, 1 casa de banho e 1 cozinha. Já o segundo apartamento, é constituído por 3 quartos, 1 casa de banho e 1 cozinha.
Finalmente no 2ºAndar tem um apartamento com 6 quartos, 1 casa de banho, 1 cozinha, 1 dispensa e 1 logradouro.
Situado a 5 minutos da Praia da Ribeira e do Jardim Visconde da Luz, este prédio é uma excelente oportunidade de investimento, tendo em vista a possibilidade de remodelar 3 apartamentos distintos e toda a área do rés-do-chão. A localização é verdadeiramente privilegiada, estando a uma curta distância a pé, de uma variedade de serviços, incluindo supermercados, restaurantes, farmácias e escolas.
Cascais é uma vila portuguesa conhecida pela sua baía de praias, comércio e cosmopolitismo. Considerado o destino mais sofisticado da região de Lisboa, imperam os palacetes e a elegância requintada de todas as construções. Com o mar a seus pés, Cascais pode orgulhar-se de ter 7 campos de golfe, um casino, uma marina e inúmeros espaços de lazer. A 30 minutos de Lisboa e do aeroporto internacional.
A Porta da Frente Christie’s é uma empresa de mediação imobiliária que trabalha no mercado há mais de duas décadas, focando-se nos melhores imóveis e empreendimentos, quer para venda quer para arrendamento. A empresa foi selecionada pela prestigiada marca Christie’s International Real Estate para representar Portugal, nas zonas de Lisboa, Cascais, Oeiras e Alentejo. A principal missão da Porta da Frente Christie’s é privilegiar um serviço de excelência a todos os nossos clientes.
Áreas
433 m²
Área Bruta Privativa
158 m²
Área do Lote
Cascais
Cascais representa o melhor do lifestyle à beira-mar, com um cenário de tirar o fôlego e uma atmosfera sofisticada. Entre praias paradisíacas, campos de golfe e restaurantes estrelados, a vila atrai quem busca conforto e exclusividade. A marina, os bairros históricos e as luxuosas propriedades fazem de Cascais um destino de eleição para famílias, investidores e amantes da natureza que não abrem mão da proximidade com Lisboa.
Descubra o seu novo bairro
