Terreno Urbano 2020 m2, Malveira da Serra, Cascais















Descrição
Terreno com 2020m2 no conceituado empreendimento Marinha Guincho, com uma excelente e desafogada vista mar e comunhão com a natureza.
O terreno está inserido num loteamento urbano, o que facilita o processo de construção. Existe também um projeto para uma moradia que esteve aprovado o ano passado.
A área de construção é de 402m2, sendo 201m2 por piso e uma piscina.
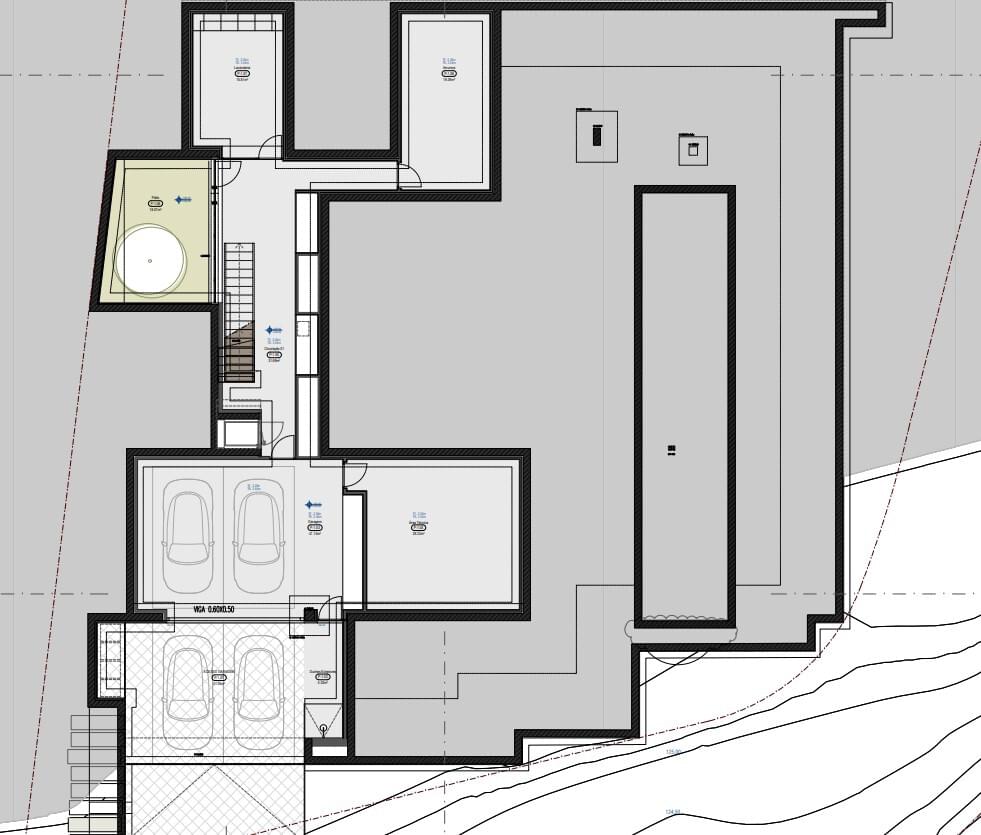
O projecto aprovado contemplava uma fantástica moradia com piscina, constituída por:
Piso 0
- Cozinha com 24,19m2
- Sala de estar e jantar com 51,15m2
- Terraço com 57,75m2
- Segundo Terraço com 64,79m2
- Casa de banho social com 1,46m2
- Suite com 11,67m2 com casa de banho com 4,52m2 e pátio com 13,74m2
- Suite com 11,50m2 com casa de banho com 4,45m2 e pátio com 13,16m2
- Ginásio 8,50m2 com pátio com 20,53m2
- Sauna 3,61m2
Piso 1
- Área de circulação com 36,79m2 com acesso a terraço com 10,19m2
- Suite com 20,25m2 e casa de banho com 7,27m2
- Suite com 26,49m2 e casa de banho com 12,61m2
- Suite com 13,89m2, walkin closet com 26,49m2 e casa de banho com 12,05m2
- Terraço com 15,83m2
- Escritório com 17,10m2
Piso -1:
- Garagem para 4 carros com 76,66m2
- Duches exteriores com 5,52m2
- Área técnica com 29,22m2
- Arrumos com 19,39m2
- Lavandaria com 15,81m2
Trata-se da localização perfeita para quem pretende vista mar, e quer estar perto da natureza, perto das melhores escolas internacionais, praias e campos de golf.
A Porta da Frente Christie’s é uma empresa de mediação imobiliária que trabalha no mercado há mais de duas décadas, focando-se nos melhores imóveis e empreendimentos, quer para venda quer para arrendamento. A empresa foi selecionada pela prestigiada marca Christie’s International Real Estate para representar Portugal, nas zonas de Lisboa, Cascais, Oeiras e Alentejo. A principal missão da Porta da Frente Christie’s é privilegiar um serviço de excelência a todos os nossos clientes.
Áreas
402 m²
Área Bruta Privativa
956 m²
Área Bruta de Construção
2020 m²
Área do Lote
Características
Descubra o seu novo bairro
