Terreno Urbano 706 m2, Belas Clube de Campo, Sintra































Descrição
Terreno de 706,17 m² com projecto aprovado e licença de construção paga, no Belas Clube de Campo, poderá construir uma moradia de até 609,73 m² distribuídos em 4 pisos.
Área do lote: 706,17 m²
Área de construção Máxima: 409,73 m²
Área Bruta Dependente: 200 m²
Área de implantação: 168,68 m²
Número de pisos: 4
Afastamentos:
- Frontal: 5m
- Lateral: 5m
- Tardoz/Traseira: 5m
O projecto, já aprovado pela Câmara Municipal de Sintra, contempla uma moradia de 4 pisos, com elevador, jardim, piscina e garagem para 4 carros, distribuídos da seguinte forma.
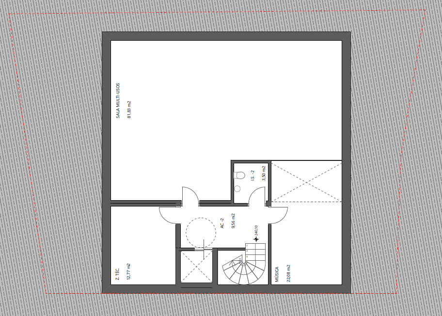
Piso -2:
- Sala Multiusos: 81,83m²
- Sala de Música: 22,08m²
- Zona Técnica: 12,77m²
Piso -1:
- Ginásio: 14,18m²
- Arrumos: 12,87m²
- Garagem: 74,63m²
- Arrumação: 6,86m²
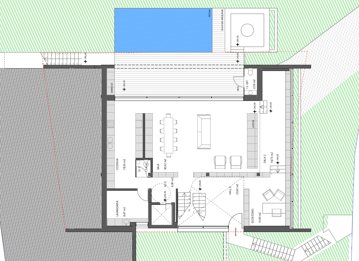
Piso 0:
- Cozinha: 18,36m²
- Lavandaria: 8,67m²
- Escritório: 13,90m²
- Sala: 69,35m²
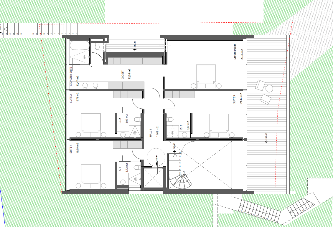
Piso 1:
- Suíte 1: 19,59m²
- Suíte 2: 19,78m²
- Suíte 3: 21,44m²
- Suíte Master: 26,56m²
- Closet Master: 13,24m²
Projeto realizado pelo gabinete de Arquitectura Estúdio Urbano.
Situado no coração de um Parque Florestal, o Belas Clube de Campo é o lugar ideal para quem deseja desfrutar de atividades ao ar livre, relaxar e saborear momentos inesquecíveis num ambiente natural e tranquilo. Com um restaurante e uma cafeteria perfeitamente integrados na paisagem e com opção de takeaway, aqui a natureza tem outro sabor. Quer seja no Healthclub – Clube VII de Belas, num torneio de padel com os amigos ou uma caminhada em família, no Belas Clube de Campo encontra tudo para uma vida naturalmente ativa e saudável. Se é entusiasta de golfe, ou se pretende iniciar-se na modalidade, não pode deixar de visitar o campo. Ainda encontra o Jardim-Escola João de Deus de Belas, em que cada criança encontra o espaço que precisa para dar asas à sua curiosidade natural. Com valências do berçário até ao 6º ano, com possibilidade de alargar até ao 9º, a escola multilingue e multicultural foi recentemente integrada da rede escolas da UNESCO. O condomínio conta ainda com um serviço de transporte (BCC Expresso), que em 10 minutos faz a ligação do Belas Clube de Campo à estação de metro do Centro Colombo. Este serviço é gratuito em todos os percursos dentro do clube.
A Porta da Frente Christie’s é uma empresa de mediação imobiliária que trabalha no mercado há mais de duas décadas, focando-se nos melhores imóveis e empreendimentos, quer para venda quer para arrendamento. A empresa foi selecionada pela prestigiada marca Christie’s International Real Estate para representar Portugal, nas zonas de Lisboa, Cascais, Oeiras e Alentejo. A principal missão da Porta da Frente Christie’s é privilegiar um serviço de excelência a todos os nossos clientes.
Áreas
410 m²
Área Bruta Privativa
706 m²
Área do Lote
Características
Sintra
Morar em Sintra é viver rodeado por história, natureza e um ambiente de conto de fadas. Entre palácios imponentes, paisagens verdejantes e um clima fresco, a região atrai quem busca tranquilidade e exclusividade. As propriedades aqui variam entre mansões centenárias e villas contemporâneas, todas imersas na beleza natural da serra. Ideal para quem valoriza privacidade, sofisticação e a proximidade com Lisboa e Cascais
Descubra o seu novo bairro
