Prédio Habitacional, Arroios, Lisboa















































Descrição
Prédio residencial com 315m2 no centro de Lisboa, em bom estado de conservação.
O edifício é datado do início do século XX, está em propriedade total e é composto por três andares independentes.
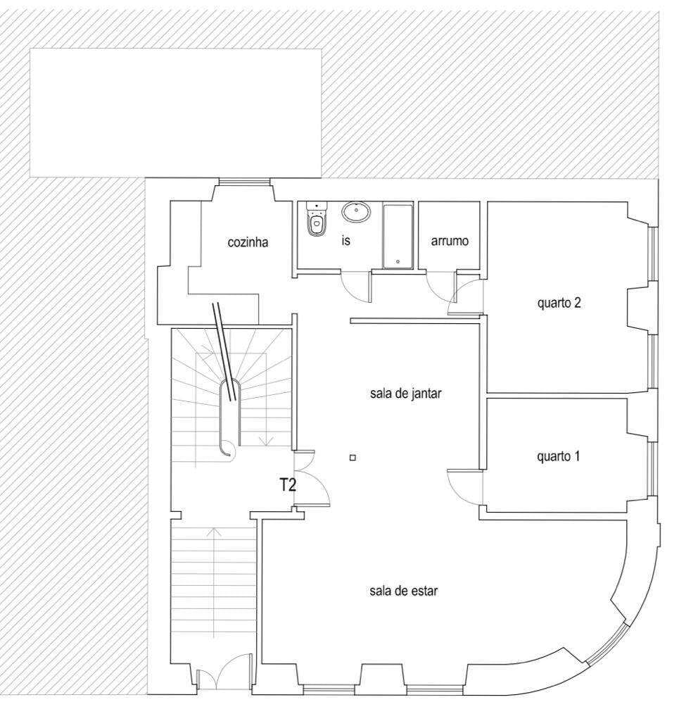
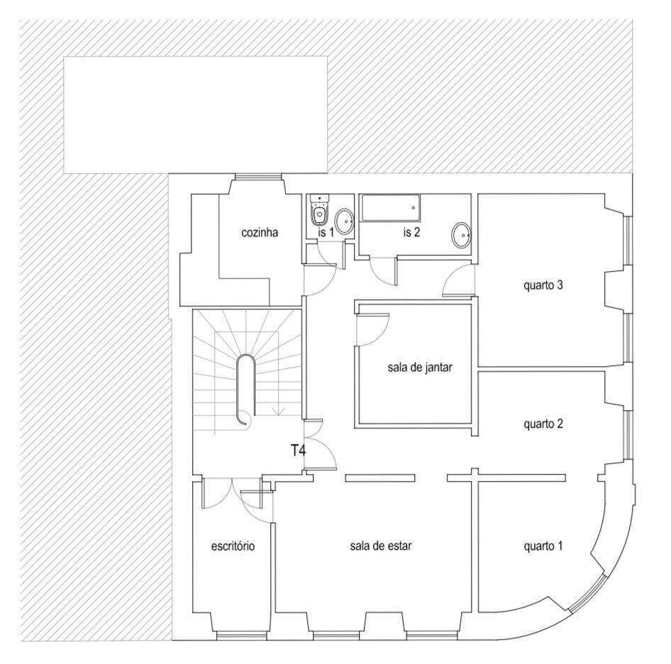
Áreas e tipologias:
CAVE: T3 com 90 m2 + 20 m2 de área exterior - Valor renda: € 650/mês (Fim do contrato: Março 2027)
R/C: T2+1 com 90 m2- Valor da renda: € 850/mês (Fim do contrato: Março 2027)
PISO 1: T3+2 com 100 m2 (estimada) - Valor da renda: € 210/mês (Contrato sem termo)
Os apartamentos da Cave e do R/c foram arrendados ao abrigo da renda acessível, pelo que estão isentos de IRS/IRC e de IMI.
O último piso do edifício poderá ter a possibilidade de um aumento face à cércea envolvente.
A localização é muito central, numa rua essencialmente residencial, vizinha da Embaixada de Itália, a 3 minutos a pé da estação de Metro e da rede de transportes da Avenida Almirante Reis.
Áreas
315 m²
Área Bruta Privativa
125 m²
Área do Lote
Lisboa
Viver em Lisboa é desfrutar de um lifestyle sofisticado e cosmopolita, com cultura vibrante, gastronomia requintada e bairros históricos cheios de charme. A cidade combina arquitetura clássica e modernidade, com luxuosos apartamentos, rooftop bars e boutiques exclusivas. Com um clima ameno e vistas deslumbrantes para o Tejo, Lisboa oferece uma experiência única para quem busca conforto, elegância e acessibilidade a tudo o que há de melhor.
Descubra o seu novo bairro
